शीर्ष पर चलने वाली ब्रिज क्रेन
उत्पाद विवरण
टॉप रनिंग ब्रिज क्रेन एक प्रकार की ओवरहेड क्रेन है जो संरचना के शीर्ष पर स्थापित निश्चित रेल (जैसे भवन की छत या क्रेन बीम) के साथ चलती है। इसका उपयोग विभिन्न उद्योगों में भारी उठाने और सामग्री प्रबंधन अनुप्रयोगों के लिए व्यापक रूप से किया जाता है, विशेष रूप से कारखानों, गोदामों और निर्माण स्थलों में।
टॉप रनिंग ब्रिज क्रेन में एक पुल होता है जो रेल के साथ चलता है, भार उठाने के लिए एक लहरा तंत्र और एक अंतिम ट्रक होता है जो पुल के दोनों छोर पर रेल के साथ चलता है। ये क्रेन उच्च गुणवत्ता वाले स्टील से बने होते हैं और इसके लिए बनाए जाते हैं हेवी-ड्यूटी ऑपरेशन, उन्हें टिकाऊ और कठिन वातावरण में काम करने में सक्षम बनाते हैं।
शीर्ष पर चलने वाले पुल क्रेनों को बड़े भार को संभालने के लिए डिज़ाइन किया गया है, जो अक्सर कई टन से अधिक होता है। वे भारी मशीनरी, घटकों या निर्माण सामग्री को उठाने की आवश्यकता वाले उद्योगों के लिए आदर्श हैं। इसमें सुरक्षित और विश्वसनीय संचालन सुनिश्चित करने के लिए सीमा स्विच, आपातकालीन स्टॉप फ़ंक्शन, अधिभार संरक्षण और टकराव-रोधी सेंसर जैसे विभिन्न सुरक्षा तंत्र शामिल हैं।
टॉप रनिंग ब्रिज क्रेन का उपयोग लोडिंग/अनलोडिंग, सामग्री परिवहन और असेंबली लाइन संचालन जैसे विभिन्न कार्यों के लिए किया जा सकता है। इसे अधिक जटिल संचालन के लिए मैन्युअल रूप से या स्वचालित सिस्टम के साथ संचालित किया जा सकता है। शीर्ष पर चलने वाली प्रणाली के कारण, इस प्रकार की क्रेन व्यापक क्षेत्रों में फैल सकती है और इमारत की अधिकतम ऊंचाई का उपयोग कर सकती है, उठाने की सीमा में सुधार कर सकती है और परिचालन दक्षता बढ़ा सकती है।
टॉप रनिंग ब्रिज क्रेन को नियमित रखरखाव की आवश्यकता होती है ताकि यह सुनिश्चित किया जा सके कि रेल, मोटर और होइस्ट सिस्टम इष्टतम स्थिति में रहें। रखरखाव जांच में रेल प्रणाली, उत्थापन तंत्र और बिजली आपूर्ति प्रणालियों का निरीक्षण शामिल है। संक्षेप में, एक शीर्ष पर चलने वाली ब्रिज क्रेन बड़े पैमाने पर सामग्री प्रबंधन की आवश्यकता वाले उद्योगों के लिए एक मजबूत और विश्वसनीय समाधान प्रदान करती है, और यह उच्च क्षमता, स्थायित्व और परिचालन प्रदान करती है। विशाल स्थानों पर भारी भार उठाने में दक्षता।
मुख्य घटक: मोटर
उत्पत्ति का स्थान: हेनान, चीन
1 साल की वॉरंटी
वज़न (KG):4500 kg
वीडियो आउटगोइंग-निरीक्षण: प्रदान किया गया
मशीनरी परीक्षण रिपोर्ट: प्रदान की गई
स्पीड: सिंगल/डबल/फ़्रीक्वेंसी इन्वर्टर
वारंटी के बाद सेवा: फ़ील्ड रखरखाव और मरम्मत सेवा
प्रमाणीकरण: सीई आईएसओ GOST
रंग: ग्राहक का अनुरोध
गर्डर प्रकार: एकल बॉक्स
कार्य कर्तव्य:ए4
क्षमता: 3टी 5टी 10टी 15टी 20टी
सामग्री:Q235B
नियंत्रण विधि: पेंडेंट लाइन नियंत्रण या रिमोट कंट्रोल

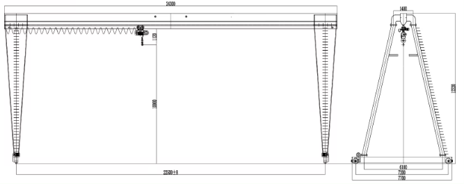
चित्र एवं घटक
1.मुख्य किरण
1) शीर्ष पर चलने वाले ब्रिज क्रेन का मुख्य बीम प्राथमिक क्षैतिज संरचनात्मक तत्व है जो क्रेन की ट्रॉली, लहरा और उसके द्वारा उठाए जाने वाले भार का समर्थन करता है। यह बीम क्रेन पुल की लंबाई के साथ चलती है और रनवे बीम पर लगाई जाती है, जो इमारत संरचना का हिस्सा हैं।
2) मुख्य बीम की मुख्य विशेषताएं:
सामग्री: आमतौर पर स्टील से बनी होती है, जो आवश्यक मजबूती और स्थायित्व प्रदान करती है।
डिज़ाइन: इसे ऑपरेशन के दौरान लगाए गए तनावों और बलों का सामना करने के लिए डिज़ाइन किया गया है, जिसमें भार का भार, भार उठाने और स्थानांतरित करने से गतिशील बल और ट्रॉली आंदोलन से लगने वाले बल शामिल हैं।
आकार: अक्सर लोड आवश्यकताओं और क्रेन की अवधि के आधार पर एक आई-बीम या बॉक्स गर्डर डिज़ाइन होता है।
कार्य: यह ट्रॉली और होइस्ट प्रणाली को सहारा देने का काम करता है और क्रेन के विस्तार में क्षैतिज गति की अनुमति देता है। ट्रॉली मुख्य बीम के शीर्ष के साथ चलती है, और लहरा तंत्र आमतौर पर इससे निलंबित होता है। कनेक्शन: मुख्य बीम दोनों तरफ अंत ट्रकों (या अंत कैरिज) से जुड़ा होता है, जो इमारत पर लगे रेल के साथ चलते हैं दीवारें या संरचनात्मक समर्थन।
क्रेन की समग्र सुरक्षा और प्रदर्शन के लिए मुख्य बीम का डिज़ाइन महत्वपूर्ण है। यह अधिकतम भार क्षमता को संभालने और समय के साथ सुचारू संचालन सुनिश्चित करने के लिए पर्याप्त मजबूत होना चाहिए।

उठाने की व्यवस्था
पुल: मुख्य क्षैतिज संरचना जो इमारत या संरचना के शीर्ष पर चलती है। यह लहरा और ट्रॉली का समर्थन करता है।
ट्रॉली: एक मोबाइल इकाई जो पुल के साथ चलती है और लहरा ले जाती है। यह पुल की लंबाई में क्षैतिज रूप से चलता है।
लहरा: उठाने वाला उपकरण, जो अक्सर हुक या अन्य अनुलग्नक से सुसज्जित होता है, जो भार उठाने और कम करने के लिए जिम्मेदार होता है। भार उठाने और कम करने के लिए लहरा आमतौर पर ट्रॉली के साथ लंबवत चलता है।
अंत ट्रक: पुल के दोनों सिरों पर यांत्रिक इकाइयाँ जो पुल को इमारत संरचना के शीर्ष पर लगे रेल के साथ चलने की अनुमति देती हैं।
रेल/रनवे: छत पर या इमारत के शीर्ष पर लगी पटरियाँ जहाँ क्रेन का पुल चलता है।
मोटर और ड्राइव तंत्र: वह मोटर जो पुल की क्षैतिज गति (रनवे के साथ) और ट्रॉली की गति (पुल के पार) दोनों को शक्ति प्रदान करती है। ड्राइव तंत्र में आमतौर पर गियर और चेन शामिल होते हैं जो मोटर से अंतिम ट्रक और ट्रॉली के पहियों तक बिजली स्थानांतरित करते हैं।
नियंत्रण प्रणाली: क्रेन की गतिविधियों को नियंत्रित करने के लिए उपयोग की जाने वाली विद्युत प्रणाली या ऑपरेटर इंटरफ़ेस। यह पेंडेंट, रिमोट कंट्रोल या ओवरहेड कंट्रोल पैनल के माध्यम से किया जा सकता है।
सुरक्षा सुविधाएँ: सुरक्षित संचालन सुनिश्चित करने के लिए टॉप-रनिंग ब्रिज क्रेन में अक्सर लिमिट स्विच, आपातकालीन स्टॉप बटन, लोड लिमिटर्स और टक्कर-रोधी डिवाइस जैसी अंतर्निहित सुरक्षा सुविधाएँ होती हैं।

3.समाप्तसवारी डिब्बा
1) शीर्ष पर चलने वाले पुल क्रेन की अंतिम गाड़ी एक आवश्यक घटक है जो समग्र संरचना का समर्थन करती है और क्रेन को पटरियों या रेल के साथ चलने की अनुमति देती है। यह क्रेन के पुल के छोर पर स्थित है।
2) अंतिम कैरिज फ्रेम संरचनात्मक समर्थन प्रदान करता है और अन्य घटकों को रखता है। इसे क्रेन के वजन और उठाए जाने वाले भार को झेलने के लिए डिज़ाइन किया गया है। अंतिम गाड़ी पहियों या रोलर्स से सुसज्जित है जो क्रेन रेल या ट्रैक के साथ चलती है। ये पहिये आम तौर पर स्टील से बने होते हैं और स्थायित्व और सुचारू गति के लिए डिज़ाइन किए जाते हैं।
3) ड्राइव सिस्टम, जिसमें आमतौर पर एक मोटर और गियरबॉक्स शामिल होता है, क्रेन रेल के साथ अंतिम गाड़ी को आगे बढ़ाने के लिए जिम्मेदार होता है। यह क्रेन के पुल को क्षैतिज रूप से स्थानांतरित करने के लिए आवश्यक गति प्रदान करता है। अंतिम गाड़ी अपने आंदोलन को नियंत्रित करने और ऑपरेशन के दौरान सुरक्षा सुनिश्चित करने के लिए ब्रेकिंग सिस्टम से सुसज्जित है। क्रेन के डिजाइन के आधार पर ब्रेक मैकेनिकल, इलेक्ट्रिकल या हाइड्रोलिक हो सकते हैं। अंतिम गाड़ी पुल संरचना से जुड़ी होती है, जिसमें लहरा तंत्र, ट्रॉली और अन्य घटक होते हैं। यह भार उठाते समय पुल को क्रेन के विस्तार के पार जाने की अनुमति देता है।

4.क्रेन यात्रा तंत्र
1) संचालन सिद्धांत
क्रेन यात्रा तंत्र मोटर, गियर, पहियों और नियंत्रण प्रणालियों की एक जटिल प्रणाली है जिसे रनवे के साथ क्रेन को स्थानांतरित करने के लिए डिज़ाइन किया गया है। यह इलेक्ट्रिक मोटरों के माध्यम से संचालित होता है जो पहियों को चलाती हैं, इसमें ब्रेक जैसे अतिरिक्त घटक और सुचारू, नियंत्रित गति सुनिश्चित करने के लिए एक नियंत्रण प्रणाली होती है।
क्रेन ट्रैवल मोटरें क्षैतिज गति के लिए आवश्यक शक्ति प्रदान करती हैं। ये आम तौर पर इलेक्ट्रिक मोटर होते हैं, और प्रत्येक मोटर एक या अधिक पहियों को चलाती है। मोटर गियरबॉक्स से जुड़े होते हैं, जो पहियों तक घूर्णी ऊर्जा संचारित करते हैं। क्रेन डिज़ाइन के आधार पर गियरबॉक्स को चेन ड्राइव, बेवेल गियर ड्राइव या डायरेक्ट कपलिंग से जोड़ा जा सकता है। क्रेन को पहियों पर लगाया जाता है, जो रनवे पर तय रेल (क्रेन ट्रैक) के साथ चलते हैं। ये पहिये क्रेन के पुल को रनवे पर आसानी से चलने की अनुमति देते हैं। ड्राइव पहिए गियर सिस्टम के माध्यम से इलेक्ट्रिक मोटर्स द्वारा संचालित होते हैं, जिससे क्रेन आगे या पीछे जाने में सक्षम होती है। आम तौर पर दो ड्राइव पहिए होते हैं, पुल के प्रत्येक तरफ एक, लेकिन बड़े क्रेन के लिए अधिक का उपयोग किया जा सकता है।
2) कार्यात्मक विशेषताएँ
सहज और कुशल आंदोलन
क्रेन यात्रा तंत्र को रनवे बीम के साथ चिकनी क्षैतिज गति के लिए डिज़ाइन किया गया है। यह आमतौर पर पहियों को चलाने के लिए इलेक्ट्रिक मोटर का उपयोग करता है, जो क्रेन की ट्रॉली संरचना द्वारा समर्थित होते हैं।
सिस्टम को सुचारू भार संचालन सुनिश्चित करने और क्रेन संरचना और ले जाए जाने वाले भार पर तनाव को रोकने के लिए झटके या असमान गति को कम करना चाहिए।
उच्च भार क्षमता
क्रेन की भार क्षमता को संभालने के लिए तंत्र पर्याप्त मजबूत होना चाहिए, जो कई टन से लेकर सैकड़ों टन तक हो सकता है। पहियों और रेलों को आंदोलन के दौरान उत्पन्न उच्च बलों का सामना करने के लिए डिज़ाइन किया जाना चाहिए।
परिशुद्धता नियंत्रण
भार की सटीक स्थिति के लिए, यात्रा तंत्र में अक्सर सटीक नियंत्रण प्रणाली शामिल होती है, जिसमें सुचारू गति नियंत्रण और स्थिति सटीकता के लिए चर आवृत्ति ड्राइव (वीएफडी) या सर्वो मोटर्स शामिल हैं।
यह सुनिश्चित करता है कि भार को क्रेन के रनवे के साथ-साथ विभिन्न स्थितियों में सटीक रूप से ले जाया जा सकता है।
प्रतिवर्ती आंदोलन
क्रेन यात्रा तंत्र को रनवे के साथ किसी भी बिंदु पर क्रेन को स्थापित करने के लिए आगे और पीछे दोनों गति की अनुमति देनी चाहिए। यह आमतौर पर इस कार्यक्षमता को प्राप्त करने के लिए गियर सिस्टम के साथ संयोजन में एक मोटर का उपयोग करता है।
संरक्षा विशेषताएं
टक्कर-रोधी प्रणालियाँ: तंत्र में सेंसर या सीमा स्विच शामिल हो सकते हैं जो रनवे के साथ एंड स्टॉप या अन्य संरचनाओं के साथ टकराव को रोकते हैं।
आपातकालीन ब्रेकिंग सिस्टम: बिजली की विफलता या अन्य समस्याओं के मामले में, तंत्र में आपातकालीन ब्रेक होने चाहिए जो क्रेन की गति को सुरक्षित रूप से रोक सकें।
अधिभार संरक्षण: अधिकतम क्षमता से अधिक होने पर क्रेन या लोड को होने वाले नुकसान को रोकने के लिए सिस्टम को अधिभार डिटेक्टरों से सुसज्जित किया जाना चाहिए।
ट्रॉली यात्रा तंत्र
1) संचालन सिद्धांत
शीर्ष पर चलने वाले पुल क्रेन का ट्रॉली यात्रा तंत्र पुल की पटरियों के साथ ट्रॉली को क्षैतिज रूप से स्थानांतरित करने के लिए एक इलेक्ट्रिक मोटर, गियर और एक ड्राइव सिस्टम का उपयोग करके कार्य करता है। नियंत्रण प्रणाली सटीक गति की अनुमति देती है, और सुरक्षा सुविधाएँ सुचारू और सुरक्षित संचालन सुनिश्चित करती हैं।
पुल क्रेन में एक पुल संरचना (मुख्य बीम) होती है, जो दो समानांतर रेलों (सहायक संरचना या भवन के शीर्ष पर स्थित) के साथ चलती है। ट्रॉली पुल पर लगी होती है और उठाने की व्यवस्था (आमतौर पर एक लहरा) करती है। . यह पुल की लंबाई के साथ क्षैतिज रूप से चलता है, भार उठाने और परिवहन के लिए स्थिति निर्धारित करता है।
2) कार्यात्मक विशेषताएँ
संचलन नियंत्रण
ट्रॉली एक इलेक्ट्रिक मोटर द्वारा संचालित होती है, जो आमतौर पर एक गियर सिस्टम से जुड़ी होती है, जिससे पुल के साथ इसकी क्षैतिज गति का सटीक नियंत्रण होता है। यह क्रेन के पुल पर लगे रेल सिस्टम का उपयोग करके संचालित होता है, जो ट्रॉली को वापस जाने के लिए एक स्थिर ट्रैक प्रदान करता है। और पूरे विस्तार में आगे। गति की गति अक्सर समायोज्य होती है, जिससे परिवहन किए जा रहे भार के आधार पर सुचारू त्वरण और मंदी की अनुमति मिलती है।
भार संभालने की क्षमता
ट्रॉली को भारी भार उठाने के लिए डिज़ाइन किया गया है, इसकी क्षमता क्रेन की उठाने की क्षमता और ट्रॉली के डिज़ाइन से निर्धारित होती है। इसमें अक्सर लोड व्हील या रोलर्स शामिल होते हैं जो क्रेन ब्रिज के ट्रैक के संपर्क में होते हैं, जिससे स्थिरता और सुचारू आवाजाही सुनिश्चित होती है। भारी वजन।
परिशुद्धता और स्थिरता
ट्रॉली की गति आमतौर पर अत्यधिक सटीक होती है, जो भार की सटीक स्थिति की आवश्यकता वाले कार्यों के लिए महत्वपूर्ण है। इसे गति के दौरान भार का न्यूनतम प्रभाव सुनिश्चित करने, भार अस्थिरता और दुर्घटनाओं के जोखिम को कम करने के लिए डिज़ाइन किया गया है।
मोटर्स और ड्राइव
ट्रॉली ड्राइव मोटरों से सुसज्जित है जो इसकी गति को शक्ति प्रदान करती है। ये मोटरें आम तौर पर इलेक्ट्रिक सिस्टम द्वारा संचालित होती हैं, जिनमें क्रेन के डिजाइन और परिचालन आवश्यकताओं के आधार पर अलग-अलग वोल्टेज होते हैं। ट्रॉली मोटर्स आमतौर पर ब्रेक सिस्टम से लैस होते हैं जो लोड के तहत ट्रॉली को सुरक्षित रूप से रोकने और स्थिति में लाने की अनुमति देते हैं।
संरक्षा विशेषताएं
तंत्र में सुरक्षा ब्रेक शामिल हैं जो बिजली खो जाने पर या आपातकालीन स्थिति में ट्रॉली को अप्रत्याशित रूप से आगे बढ़ने से रोकते हैं। कुछ ट्रॉलियों में सीमा स्विच भी होते हैं जो ट्रॉली को पूर्वनिर्धारित ट्रैक सीमाओं से आगे बढ़ने से रोकते हैं, जिससे लोड और आसपास के बुनियादी ढांचे दोनों की रक्षा होती है। .
संचालन और ट्रैकिंग
डिज़ाइन के आधार पर, कुछ ट्रॉलियों में स्टीयरिंग तंत्र की सुविधा हो सकती है जो ट्रैक के साथ नियंत्रित मोड़ और घुमावदार गति की अनुमति देती है, जिससे क्रेन को अधिक जटिल लेआउट में उपयोग किया जा सकता है। ट्रैकिंग सिस्टम यह सुनिश्चित करता है कि ट्रॉली ट्रैक के साथ संरेखित रहे, जिससे पटरी से उतरने से रोका जा सके और टूट-फूट को कम करना।
6.क्रेन का पहिया
शीर्ष पर चलने वाले पुल क्रेन का क्रेन पहिया एक महत्वपूर्ण घटक है जिसे क्रेन को उसके रनवे बीम के साथ समर्थन और मार्गदर्शन करने के लिए डिज़ाइन किया गया है। ये पहिये मजबूत, टिकाऊ हैं और सुचारू, कुशल गति को सक्षम करते हुए उच्च भार का सामना करने के लिए इंजीनियर किए गए हैं।
स्थायित्व और पहनने के प्रतिरोध को सुनिश्चित करने के लिए क्रेन के पहिये आमतौर पर उच्च ग्रेड स्टील या जाली स्टील से बने होते हैं। एप्लिकेशन और ट्रैक कॉन्फ़िगरेशन के आधार पर सिंगल, डबल या फ़्लैंगलेस डिज़ाइन में उपलब्ध है। उचित संरेखण और सुचारू संचालन सुनिश्चित करने के लिए परिशुद्धता से मशीनीकृत। क्रेन की निर्धारित क्षमता के आधार पर बड़े भार को संभालने के लिए डिज़ाइन किया गया। कठोरता और घिसाव तथा विरूपण के प्रतिरोध को बढ़ाने के लिए अक्सर ताप उपचार किया जाता है। कई पहियों में घर्षण और घिसाव को कम करने के लिए एकीकृत या बाहरी स्नेहन प्रणाली होती है।

7.क्रेन हुक
शीर्ष पर चलने वाले पुल क्रेन का क्रेन हुक एक महत्वपूर्ण घटक है जिसे भारी भार को सुरक्षित रूप से उठाने और ले जाने के लिए डिज़ाइन किया गया है। हुक क्रेन का वह हिस्सा है जहां भार जुड़ा होता है, आमतौर पर स्लिंग्स, चेन या अन्य हेराफेरी उपकरणों के माध्यम से।
भारी भार के तहत मजबूती और स्थायित्व सुनिश्चित करने के लिए ओवरहेड क्रेन के लिए क्रेन हुक आमतौर पर उच्च शक्ति वाले जाली स्टील से बने होते हैं। ऑपरेशन के दौरान भार को फिसलने से रोकने के लिए सुरक्षा कुंडी से सुसज्जित। क्रेन की अधिकतम भार क्षमता (जैसे 5 टन, 10 टन, 50 टन) के अनुसार रेटेड। कुछ हुक 360 डिग्री तक घूम सकते हैं, जिससे भार की स्थिति में लचीलापन आता है।
हुक के साथ टॉप-रनिंग ब्रिज क्रेन के लाभ
स्थिरता: रनवे बीम के ऊपर स्थित, उच्च उठाने की क्षमता प्रदान करता है और भवन संरचना पर तनाव कम करता है।
व्यापक कवरेज: गोदामों, कार्यशालाओं और असेंबली लाइनों में अनुप्रयोगों के लिए आदर्श।
अनुकूलनशीलता: विशिष्ट आवश्यकताओं को पूरा करने के लिए हुक को विभिन्न प्रकार के होइस्ट (इलेक्ट्रिक वायर रस्सी, चेन होइस्ट) के साथ जोड़ा जा सकता है।

मोटर
शीर्ष पर चलने वाले ब्रिज क्रेन की मोटर एक महत्वपूर्ण घटक है जो रनवे बीम पर क्रेन की गति को शक्ति प्रदान करती है और भार उठाने या कम करने की सुविधा प्रदान करती है।
ब्रिज क्रेन में मोटरों के प्रकार
ट्रैवल मोटर्स: रनवे बीम पर रेल के साथ क्रेन की क्षैतिज गति को चलाएं।
होइस्ट मोटर्स: भार उठाने और घटाने को नियंत्रित करें।
प्रमुख विशेषताऐं
शक्ति और टॉर्क: मोटर को अधिकतम रेटेड लोड को संभालने और सुचारू त्वरण और मंदी सुनिश्चित करने के लिए पर्याप्त टॉर्क उत्पन्न करना चाहिए।
गति नियंत्रण: अधिकांश आधुनिक ब्रिज क्रेन मोटर गति को नियंत्रित करने, सटीक लोड हैंडलिंग और घिसाव को कम करने के लिए वेरिएबल फ्रीक्वेंसी ड्राइव (वीएफडी) का उपयोग करते हैं।
ड्यूटी चक्र: मोटर्स को हेवी-ड्यूटी संचालन के लिए डिज़ाइन किया गया है, जिन्हें अक्सर "क्रेन ड्यूटी" या "ड्यूटी क्लास" मानकों (उदाहरण के लिए, एफईएम या सीएमएए वर्गीकरण) के तहत वर्गीकृत किया जाता है।
ब्रेकिंग सिस्टम: सुरक्षित रुकने और लोड पकड़ने के लिए एकीकृत या बाहरी ब्रेक शामिल हैं।

.
ध्वनि और प्रकाश अलार्म प्रणाली और सीमा स्विच
1) ध्वनि और प्रकाश अलार्म प्रणाली
शीर्ष पर चलने वाली ब्रिज क्रेन के लिए ध्वनि और प्रकाश अलार्म प्रणाली एक आवश्यक सुरक्षा सुविधा है जिसे श्रमिकों को क्रेन की गतिविधियों और संभावित खतरों के प्रति सचेत करके परिचालन सुरक्षा बढ़ाने के लिए डिज़ाइन किया गया है।
श्रव्य अलार्म (ध्वनि अलार्म): क्रेन के आसपास के कर्मियों को सचेत करने के लिए हॉर्न, बजर या सायरन जैसी तेज़ चेतावनी ध्वनि उत्सर्जित करता है। आंदोलन के प्रकारों (जैसे, यात्रा, उत्थापन) के बीच अंतर करने के लिए समायोज्य मात्रा और विभिन्न ध्वनि पैटर्न की सुविधा है। या आपातकालीन)।
दृश्य अलार्म (लाइट अलार्म): इसमें चमकती या घूमने वाली चेतावनी रोशनी शामिल होती है, आमतौर पर दृश्यता के लिए उज्ज्वल एलईडी का उपयोग किया जाता है। अक्सर ध्वनि के अलावा दृश्य अलर्ट प्रदान करने के लिए रंग-कोडित (उदाहरण के लिए, खतरे के लिए लाल, सावधानी के लिए पीला) होता है।
2) सीमा स्विच
टॉप-रनिंग ब्रिज क्रेन का लिमिट स्विच एक महत्वपूर्ण सुरक्षा उपकरण है जो क्रेन या उसके घटकों को पूर्वनिर्धारित सीमा से परे जाने से रोकता है, जिससे सुरक्षित संचालन सुनिश्चित होता है।
कार्य
जब क्रेन गति की पूर्व-निर्धारित अधिकतम या न्यूनतम सीमा तक पहुँच जाती है तो यात्रा रोक देती है:
ब्रिज यात्रा: ब्रिज को रनवे से बाहर जाने से रोकता है।
ट्रॉली यात्रा: ट्रॉली को पुल पर बहुत दूर तक जाने से रोकता है।
लहरा यात्रा: भार को अधिक उठाने या कम करने से रोकता है।
सीमा स्विच के प्रकार
रोटरी लिमिट स्विच: होइस्ट ड्रम या मोटर शाफ्ट के रोटेशन की निगरानी करता है। आमतौर पर होइस्ट की ऊंचाई (ऊपर/नीचे) को नियंत्रित करने के लिए उपयोग किया जाता है।
लीवर-प्रकार सीमा स्विच: तब सक्रिय होता है जब एक यांत्रिक लीवर ट्रॉली या पुल से भौतिक रूप से संपर्क करता है। ट्रॉली या पुल यात्रा सीमा के लिए उपयोग किया जाता है।

10.सुरक्षा उपकरण
1. अधिभार संरक्षण उपकरण
क्रेन को उसकी निर्धारित क्षमता से अधिक भार उठाने से रोकता है।
उठाए जा रहे वजन की निगरानी के लिए अक्सर लोड सेंसर का उपयोग किया जाता है।
2. सीमा स्विच
यात्रा सीमा स्विच: क्रेन को रनवे पर उसकी अनुमत सीमा से आगे जाने से रोकें।
उत्थापन सीमा स्विच: हुक ब्लॉक को अधिक उठाने (दो-ब्लॉकिंग) या बहुत दूर तक नीचे जाने से रोकें।
3. टक्कररोधी उपकरण
रनवे पर अन्य क्रेन या बाधाओं के साथ टकराव को रोकने के लिए सेंसर या निकटता उपकरण।
4. आपातकालीन रोक प्रणाली
आपातकालीन स्थिति में तुरंत क्रेन की बिजली काटने के लिए स्पष्ट रूप से चिह्नित और आसानी से सुलभ आपातकालीन स्टॉप बटन।
5. लोड ब्रेक और होइस्ट ब्रेक
लोड ब्रेक: जब लहरा हिल नहीं रहा हो तो लोड को उसी स्थिति में रखें।
होइस्ट ब्रेक: होइस्ट गति को सटीक और सुरक्षित रूप से रोकें।
6. तार रस्सी और चेन सुरक्षा सुविधाएँ
तार रस्सी के घिसाव या चेन टूटने से बचाने के लिए पटरी से उतरने-रोधी उपकरण और उचित स्नेहन प्रणालियाँ शामिल हैं।
7. ओवर-स्पीड सुरक्षा
गुरुत्वाकर्षण या यांत्रिक विफलता के कारण लहरा को बहुत तेज़ी से नीचे उतरने से रोकता है।
8. एंटी-स्वे सिस्टम
अधिक सटीक और सुरक्षित संचालन सुनिश्चित करते हुए, भार के उतार-चढ़ाव को कम करता है।
9. शॉक लोड रोकथाम
लहरा को अचानक शुरू करने या रोकने से होने वाले अचानक झटके के प्रभाव को कम करने में मदद करता है।
10. अंतिम स्टॉप और बफ़र्स
ऊर्जा को अवशोषित करने और क्रेन या ट्रॉली को ओवर-ट्रैवलिंग से रोकने के लिए रनवे या पुल यात्रा के अंत में स्थापित किया गया।
11. नियंत्रण मोड
1. पेंडेंट नियंत्रण
विवरण: ऑपरेटर एक तार वाले पेंडेंट का उपयोग करके क्रेन को नियंत्रित करता है जो क्रेन या होइस्ट से लटका होता है। पेंडेंट के बटन उठाने, नीचे करने और यात्रा की गतिविधियों को नियंत्रित करते हैं।
लाभ: सरल और लागत प्रभावी। प्रत्यक्ष मैनुअल नियंत्रण प्रदान करता है।
नुकसान: ऑपरेटर को क्रेन का अनुसरण करना चाहिए, जो खतरनाक वातावरण में असुरक्षित हो सकता है। केबल की लंबाई के कारण सीमित परिचालन सीमा।
2. रेडियो रिमोट कंट्रोल
विवरण: क्रेन को वायरलेस हैंडहेल्ड ट्रांसमीटर का उपयोग करके संचालित किया जाता है, जो क्रेन के रिसीवर को सिग्नल भेजता है।
लाभ: ऑपरेटर के लिए अधिक गतिशीलता। सुरक्षित संचालन क्योंकि ऑपरेटर एक सुरक्षित दूरी बनाए रख सकता है। ऑपरेटर पर शारीरिक तनाव कम करता है।
नुकसान: ट्रांसमीटर के नियमित रखरखाव की आवश्यकता है। कई वायरलेस उपकरणों वाले क्षेत्रों में संभावित हस्तक्षेप।
3. केबिन नियंत्रण
विवरण: ऑपरेटर क्रेन पर लगे एक केबिन में बैठता है, जहां से उन्हें कार्य क्षेत्र का पूरा दृश्य दिखाई देता है।
लाभ: हेवी-ड्यूटी संचालन के लिए आदर्श। सटीक संचालन के लिए उत्कृष्ट दृश्यता और नियंत्रण प्रदान करता है।
नुकसान: अधिक महंगा सेटअप। केबिन में ऑपरेटर की उपस्थिति तक सीमित।
4. अर्ध-स्वचालित नियंत्रण
विवरण: क्रेन कुछ मैन्युअल हस्तक्षेप की आवश्यकता होने पर पूर्वनिर्धारित निर्देशों के आधार पर स्वचालित रूप से विशिष्ट गतिविधियां या संचालन करती है।
लाभ: उत्पादकता में वृद्धि। ऑपरेटर की थकान कम हो जाती है।
नुकसान: कार्यान्वयन की उच्च लागत। सिस्टम को प्रबंधित करने के लिए प्रशिक्षित कर्मियों की आवश्यकता होती है।
5. पूर्णतः स्वचालित नियंत्रण
विवरण: क्रेन पूरी तरह से स्वचालित है और प्रोग्राम किए गए निर्देशों या औद्योगिक नियंत्रण प्रणाली के साथ एकीकरण के आधार पर संचालित होती है।
लाभ: अधिकतम दक्षता और परिशुद्धता।
विनिर्माण या गोदाम वातावरण में दोहराए जाने वाले कार्यों के लिए आदर्श।
नुकसान: उच्च प्रारंभिक लागत। समस्या निवारण के लिए नियमित रखरखाव और कुशल कर्मियों की आवश्यकता वाली जटिल प्रणाली।

12.स्केच

मुख्य तकनीकी

लाभ
1. उच्च भारोत्तोलन क्षमता
शीर्ष पर चलने वाली ब्रिज क्रेनें अन्य प्रकार की क्रेनों की तुलना में भारी भार संभाल सकती हैं। इन्हें बड़े वजन उठाने और परिवहन करने के लिए डिज़ाइन किया गया है, जो उन्हें स्टील, जहाज निर्माण और भारी विनिर्माण जैसे उद्योगों के लिए उपयुक्त बनाता है।
2. अधिकतम ऊर्ध्वाधर स्थान
चूंकि क्रेन रनवे बीम के शीर्ष पर लगे रेल पर काम करती है, यह सुविधा में ऊर्ध्वाधर स्थान के अधिकतम उपयोग की अनुमति देती है। यह ऊंचाई की बाधाओं वाली इमारतों में विशेष रूप से उपयोगी है।
3. बहुमुखी प्रतिभा
ये क्रेन अत्यधिक बहुमुखी हैं और इन्हें विशिष्ट परिचालन आवश्यकताओं के अनुरूप अनुकूलित किया जा सकता है, जिसमें अतिरिक्त ताकत के लिए दोहरे गर्डर, विशेष लहरा और विभिन्न नियंत्रण प्रणालियाँ शामिल हैं।
4. व्यापक कवरेज
शीर्ष पर चलने वाले पुल क्रेन एक बड़े कार्य क्षेत्र को कवर करते हैं क्योंकि वे व्यापक खाड़ियों को फैला सकते हैं और सामग्री प्रबंधन में बेहतर लचीलापन प्रदान कर सकते हैं।
5. स्थायित्व
मजबूत सामग्रियों और घटकों से निर्मित, वे लंबे समय तक चलने वाले होते हैं और उन्हें न्यूनतम रखरखाव की आवश्यकता होती है, जो उन्हें लंबे समय में लागत प्रभावी बनाता है।
6. फर्श की जगह में कोई बाधा नहीं
चूंकि वे फर्श के ऊपर काम करते हैं, इसलिए जमीन पर कोई रुकावट नहीं होती है, जिससे श्रमिकों, वाहनों और अन्य उपकरणों की बेहतर आवाजाही संभव हो जाती है।
7. एकीकरण में आसानी
शीर्ष पर चलने वाले पुल क्रेनों को मौजूदा बुनियादी ढांचे में एकीकृत किया जा सकता है या नए निर्माण के हिस्से के रूप में डिजाइन किया जा सकता है, जिससे वे विभिन्न वातावरणों के अनुकूल बन सकते हैं।
8. बढ़ी हुई सुरक्षा
उन्नत सुरक्षा सुविधाएँ जैसे टक्कर-रोधी प्रणालियाँ, अधिभार संरक्षण और आपातकालीन रोक तंत्र कार्यस्थल की सुरक्षा में सुधार करते हैं।
9. ऊर्जा दक्षता
आधुनिक टॉप-रनिंग ब्रिज क्रेन ऊर्जा-कुशल मोटर्स और सिस्टम से लैस हैं जो संचालन के दौरान बिजली की खपत को कम करते हैं।
10. एकाधिक विन्यास
ये क्रेन सिंगल-गर्डर या डबल-गर्डर कॉन्फ़िगरेशन में उपलब्ध हैं, जिससे व्यवसायों को अपनी परिचालन आवश्यकताओं के लिए सबसे उपयुक्त विकल्प चुनने की अनुमति मिलती है।
आवेदन
1. विनिर्माण उद्योग
असेंबली लाइन्स: कच्चे माल और तैयार माल को उत्पादन क्षेत्रों में ले जाने के लिए उपयोग किया जाता है।
मशीनरी स्थापना: विनिर्माण प्रक्रियाओं के दौरान भारी मशीनरी घटकों को उठाने और रखने में सहायता करता है।
2. भण्डारण एवं रसद
लोडिंग और अनलोडिंग: भंडारण सुविधाओं में माल की कुशल हैंडलिंग की सुविधा प्रदान करता है।
भंडारण संगठन: रैक या अलमारियों पर भारी उत्पादों को रखने और व्यवस्थित करने के लिए उपयोग किया जाता है।
3. इस्पात और धातुकर्म
भारी धातुओं को संभालना: आमतौर पर स्टील कॉइल्स, बिलेट्स और बड़ी धातु शीटों को हिलाने के लिए उपयोग किया जाता है।
मशीनिंग संचालन: वर्कपीस की स्थिति निर्धारित करके काटने, झुकने और वेल्डिंग जैसे संचालन का समर्थन करता है।
4. निर्माण उद्योग
सामग्री परिवहन: बीम और गर्डर्स जैसी भारी निर्माण सामग्री को ले जाना।
प्रीकास्ट कंक्रीट: बुनियादी ढांचा परियोजनाओं के लिए प्रीकास्ट कंक्रीट खंडों को उठाना और रखना।
5. खनन उद्योग
सामग्री निष्कर्षण: अयस्क, चट्टान और अन्य सामग्रियों के परिवहन को संभालता है।
रखरखाव: मरम्मत या सर्विसिंग के दौरान खनन उपकरण को उठाना और स्थापित करना।
6. बिजली संयंत्र
टरबाइन रखरखाव: टरबाइन घटकों को उठाने और परिवहन के लिए उपयोग किया जाता है।
उपकरण संचालन: जनरेटर, ट्रांसफार्मर और अन्य भारी उपकरणों को ले जाना।
7. जहाज निर्माण
पतवार संयोजन: जहाज के पतवार के बड़े हिस्से की स्थिति निर्धारित करने में सहायता करता है।
उपकरण स्थापना: इंजन, प्रोपेलर और अन्य जहाज घटकों को उठाना और स्थापित करना।
8. मोटर वाहन उद्योग
वाहन संयोजन: इंजन और चेसिस जैसे बड़े ऑटोमोटिव भागों को स्थानांतरित करता है।
टूलींग प्रबंधन: उत्पादन प्रक्रियाओं में साँचे और डाइज़ को स्थानांतरित करता है।
9. एयरोस्पेस उद्योग
विमान असेंबली: पंख और धड़ जैसे हवाई जहाज के घटकों को उठाना और परिवहन करना।
रखरखाव संचालन: विमान की मरम्मत और रखरखाव में सहायता करता है।
10. कागज और लुगदी उद्योग
रोल हैंडलिंग: उत्पादन और भंडारण के दौरान बड़े पेपर रोल को ले जाना।
मशीन का रखरखाव: मरम्मत के दौरान उपकरण को उठाना और स्थापित करना।
क्रेनउत्पादन प्रक्रिया
1. डिजाइन और इंजीनियरिंग
ग्राहक आवश्यकताएँ: ग्राहक से विस्तृत विवरण एकत्र करें (भार क्षमता, अवधि, उठाने की ऊँचाई, पर्यावरण, आदि)।
संरचनात्मक डिजाइन: सीएडी और इंजीनियरिंग सॉफ्टवेयर का उपयोग करके संरचनात्मक और यांत्रिक डिजाइन बनाएं। प्रासंगिक उद्योग मानकों (उदाहरण के लिए, आईएसओ, एएसएमई, एफईएम) का अनुपालन सुनिश्चित करें।
विद्युत डिज़ाइन: मोटर, वायरिंग और नियंत्रण पैनल सहित विद्युत नियंत्रण प्रणाली विकसित करें।
लोड गणना: सुरक्षा और स्थायित्व सुनिश्चित करने के लिए तनाव और लोड गणना करें।
अनुमोदन: आगे बढ़ने से पहले ग्राहक अनुमोदन के लिए डिज़ाइन सबमिट करें।
2. सामग्री की खरीद
कच्चा माल: उच्च गुणवत्ता वाली स्टील प्लेट, बीम और अन्य सामग्री प्राप्त करें।
घटक: विश्वसनीय आपूर्तिकर्ताओं से मोटर, गियरबॉक्स, नियंत्रण पैनल, अंतिम ट्रक और तार रस्सियों जैसे प्रमुख घटकों की खरीद करें।
गुणवत्ता जांच: विशिष्टताओं से दोष या विचलन के लिए सामग्री और घटकों का निरीक्षण करें।
3. निर्माण
काटना और आकार देना: सीएनसी कटिंग मशीनों, प्लाज्मा कटर या लेजर कटर का उपयोग करके स्टील प्लेटों और अनुभागों को आकार में काटें।
वेल्डिंग: सख्त गुणवत्ता मानकों का पालन करते हुए संरचनात्मक घटकों (जैसे, ब्रिज गर्डर, एंड ट्रक) को वेल्ड करें।
मशीनिंग: सटीक फिट और संरेखण सुनिश्चित करने के लिए अंतिम ट्रकों, पहियों और अन्य घटकों की मशीनिंग करें।
गैर-विनाशकारी परीक्षण (एनडीटी): अल्ट्रासोनिक या रेडियोग्राफ़िक परीक्षण जैसे तरीकों का उपयोग करके दोषों के लिए वेल्ड और संरचनात्मक भागों का निरीक्षण करें।
4. सभा
ब्रिज गर्डर असेंबली: मुख्य गर्डरों, अंतिम ट्रकों और कनेक्टिंग प्लेटों को इकट्ठा करें।
ट्रॉली असेंबली: होइस्ट, मोटर, ड्रम और ट्रॉली घटकों को स्थापित करें।
विद्युत स्थापना: नियंत्रण पैनल, वायरिंग, सीमा स्विच और सुरक्षा उपकरण स्थापित करें।
5. भूतल उपचार
सफाई: जंग और अशुद्धियों को हटाने के लिए सभी सतहों को सैंडब्लास्ट या साफ करें।
कोटिंग: ऑपरेटिंग वातावरण (उदाहरण के लिए, बाहरी या संक्षारक वातावरण) के अनुसार जंग-रोधी प्राइमर और पेंट लगाएं।
6. परीक्षण और गुणवत्ता नियंत्रण
स्थैतिक भार परीक्षण: क्रेन का उसकी निर्धारित क्षमता से अधिक स्थिर भार के साथ परीक्षण करें।
गतिशील भार परीक्षण: अलग-अलग भार के साथ परिचालन स्थितियों के तहत क्रेन का परीक्षण करें।
विद्युत परीक्षण: सुरक्षा उपकरणों और नियंत्रणों सहित विद्युत प्रणाली का उचित संचालन सुनिश्चित करें।
प्रमाणीकरण: राष्ट्रीय और अंतर्राष्ट्रीय मानकों को पूरा करने के लिए क्रेन को प्रमाणित करें।
7. पैकेजिंग और डिलिवरी
जुदा करना (यदि आवश्यक हो): क्रेन को परिवहन योग्य घटकों में अलग करें।
पैकेजिंग: परिवहन के लिए सभी घटकों को सुरक्षित रूप से पैक करें।
शिपिंग: ग्राहक की साइट पर डिलीवरी की व्यवस्था करें।
8. स्थापना और कमीशनिंग
साइट की तैयारी: साइट का निरीक्षण करें और सुनिश्चित करें कि सभी आवश्यक तैयारी पूरी हो गई हैं।
निर्माण: साइट पर क्रेन घटकों को इकट्ठा और स्थापित करें।
संरेखण: क्रेन ट्रैक, पहियों और संरचनात्मक भागों को संरेखित करें।
अंतिम परीक्षण: कार्यक्षमता और सुरक्षा को सत्यापित करने के लिए साइट पर परीक्षण करें।
9. प्रशिक्षण एवं हस्तान्तरण
ऑपरेटर प्रशिक्षण: ग्राहक की टीम को क्रेन संचालन और रखरखाव पर प्रशिक्षित करें।
दस्तावेज़ीकरण: मैनुअल, रखरखाव कार्यक्रम और प्रमाणन दस्तावेज़ प्रदान करें।
हैंडओवर: प्रोजेक्ट पूरा करें और क्रेन को ग्राहक को सौंप दें।

कार्यशाला दृश्य:
कंपनी ने एक बुद्धिमान उपकरण प्रबंधन प्लेटफ़ॉर्म स्थापित किया है, और हैंडलिंग और वेल्डिंग रोबोट के 310 सेट (सेट) स्थापित किए हैं। योजना के पूरा होने के बाद, 500 से अधिक सेट (सेट) होंगे, और उपकरण नेटवर्किंग दर 95% तक पहुंच जाएगी। 32 वेल्डिंग लाइनों को उपयोग में लाया गया है, 50 को स्थापित करने की योजना है, और संपूर्ण उत्पाद लाइन की स्वचालन दर 85% तक पहुंच गई है।





लोकप्रिय टैग: टॉप रनिंग ब्रिज क्रेन, चीन टॉप रनिंग ब्रिज क्रेन निर्माता, आपूर्तिकर्ता, कारखाने
की एक जोड़ी
ओवरहेड आइसोलेशन क्रेनशायद तुम्हे यह भी अच्छा लगे
जांच भेजें























