मोबाइल गर्डर रेल गैन्ट्री
उत्पाद विवरण
मोबाइल सिंगल गर्डर रेल गैन्ट्री एक प्रकार की क्रेन है जिसे रेल पटरियों के साथ चलने और विभिन्न औद्योगिक वातावरणों में उठाने और परिवहन क्षमता प्रदान करने के लिए डिज़ाइन किया गया है। इसका उपयोग आमतौर पर विनिर्माण, निर्माण और रसद में भारी सामग्री और सामान को संभालने के लिए किया जाता है। क्रेन में एक एकल गर्डर संरचना है जो उठाने की व्यवस्था का समर्थन करती है। यह डिज़ाइन डबल गर्डर गैन्ट्री की तुलना में अधिक कॉम्पैक्ट और लागत प्रभावी है, जबकि अभी भी अधिकांश उठाने के संचालन के लिए विश्वसनीय प्रदर्शन प्रदान करता है।
गैन्ट्री पहियों या रेल-माउंटेड सिस्टम से सुसज्जित है, जो इसे रेल के साथ आसानी से चलने की अनुमति देता है। यह गतिशीलता बड़ी सुविधाओं या बाहरी वातावरण के लिए आदर्श है जहां माल को लंबी दूरी तक ले जाने की आवश्यकता होती है। इन गैन्ट्री को एक विस्तृत श्रृंखला उठाने के लिए डिज़ाइन किया गया है विशिष्ट मॉडल और कॉन्फ़िगरेशन के आधार पर, आमतौर पर 1 टन और 30 टन के बीच भार होता है। उठाने की व्यवस्था लहरा, पुली और कभी-कभी हुक-आधारित या चुंबक-आधारित अनुलग्नकों से सुसज्जित होती है।
3) गैन्ट्री को सटीक गति के लिए रेल पर लगाया गया है, जो कंटेनर यार्ड, स्टील प्लांट और गोदामों जैसे अनुप्रयोगों में उपयोगी है। यह एक निश्चित ट्रैक के साथ भारी भार ले जाने पर स्थिरता और दक्षता सुनिश्चित करता है। उच्च गुणवत्ता वाले स्टील से निर्मित और इंजीनियर किया गया है स्थायित्व के लिए, ये गैन्ट्री पहनने के लिए प्रतिरोधी हैं और कठोर वातावरण में कार्य कर सकते हैं। ओवरलोड सुरक्षा, आपातकालीन स्टॉप बटन और सेंसर जैसी सुरक्षा सुविधाएं लोडिंग और अनलोडिंग गतिविधियों के दौरान सुरक्षित संचालन सुनिश्चित करने में मदद करती हैं। गैन्ट्री क्रेन को संचालित किया जा सकता है एक साधारण नियंत्रण कक्ष, जो मैनुअल या रिमोट ऑपरेशन की पेशकश करता है। ऑपरेटर आसानी से क्रेन की गति को नियंत्रित कर सकते हैं, जिससे मांग वाले कार्य वातावरण में उत्पादकता में सुधार होता है।
1 साल की वॉरंटी
वज़न (KG):9860 kg
वीडियो आउटगोइंग-निरीक्षण: प्रदान किया गया
मशीनरी परीक्षण रिपोर्ट: प्रदान की गई
आवेदन:औद्योगिक कार्यशाला संयंत्र
उठाने की व्यवस्था: विद्युत उत्तोलक
क्रेन प्रकार: सिंग गर्डर गैन्ट्री क्रेन
गर्डर प्रकार: सिंगल बॉक्स गर्डर
नियंत्रण विधि: रिमोट कंट्रोल
कार्य कर्तव्य:ए4
पावर स्रोत: 3 चरण 380V 50 हर्ट्ज/अनुकूलित
बिक्री के बाद सेवा प्रदान की गई: ऑनलाइन सहायता प्रदान की गई
रंग: अनुकूलित
चित्र एवं घटक
मुख्य किरण
1)संरचनात्मक संरचना:
सामग्री: आमतौर पर उच्च शक्ति वाले स्टील, जैसे कार्बन स्टील या मिश्र धातु स्टील से बना, मुख्य बीम को भारी भार और पर्यावरणीय परिस्थितियों का सामना करने के लिए इंजीनियर किया जाता है।
डिज़ाइन: क्रेन की विशिष्ट आवश्यकताओं के आधार पर, बीम आमतौर पर बॉक्स-प्रकार या आई-बीम डिज़ाइन को अपनाता है। डिज़ाइन का चुनाव वजन, स्थिरता और निर्माण में आसानी जैसे कारकों को प्रभावित करता है।
आयाम: बीम की लंबाई, ऊंचाई और चौड़ाई क्रेन की उठाने की क्षमता और ट्रैक की लंबाई के अनुसार अनुकूलित की जाती है। बीम जितनी लंबी होगी, भारी भार को झेलने के लिए उसे उतनी ही अधिक दूरी तय करनी होगी।
2)कार्यक्षमता:
भार वितरण: मुख्य बीम ट्रॉली, होइस्ट और रेल प्रणालियों के बल के साथ-साथ उठाए जाने वाले भार के भार को वहन करने के लिए जिम्मेदार है।
अन्य घटकों के लिए समर्थन: मुख्य बीम अन्य प्रमुख घटकों जैसे ट्रॉली (वह हिस्सा जो बीम के साथ चलता है), उत्थापन तंत्र, और अंत बीम (जो गैन्ट्री के पहियों और रेल का समर्थन करता है) के लिए नींव के रूप में कार्य करता है।
लचीलापन: मुख्य बीम को उठाने की प्रक्रिया के दौरान त्वरण, मंदी और लोड स्विंग सहित गतिशील बलों को संभालने के लिए डिज़ाइन किया गया है।

उठाने की व्यवस्था
लिफ्टिंग सिस्टम कैसे काम करता है:
1)भार उठाना:
ऑपरेटर होइस्ट को सक्रिय करने के लिए नियंत्रण प्रणाली का उपयोग करता है, जो ड्रम के चारों ओर चेन या रस्सी को घुमाना शुरू कर देता है, जिससे लिफ्टिंग हुक या अटैचमेंट ऊपर उठता है और भार उठाता है।
होइस्ट ट्रॉली के साथ मिलकर काम करता है, जो लोड को आवश्यक स्थान पर रखने के लिए बीम के साथ क्षैतिज रूप से चलता है।
2) भार कम करना:
भार को कम करने के लिए, होइस्ट मोटर उलट जाती है, जिससे चेन या रस्सी ड्रम से खुल जाती है और भार को वापस जमीन पर या आवश्यक स्थिति में ले आती है।
3)क्षैतिज गति:
ट्रॉली अपने स्वयं के ड्राइव मोटर द्वारा या मैन्युअल रूप से संचालित होकर, मुख्य बीम के साथ क्षैतिज रूप से भी चल सकती है। यह लोड को ठीक उसी स्थान पर रखने की अनुमति देता है जहां इसकी आवश्यकता है।
![]() |
![]() |
3.समाप्तसवारी डिब्बा
1. गैन्ट्री संरचना के लिए समर्थन:
अंतिम गाड़ी क्रेन के मुख्य गर्डर की नींव के रूप में कार्य करती है, जो दो अंतिम गाड़ियों के बीच फैली होती है। यह भारी उठाने के संचालन को संभालने के लिए आवश्यक संरचनात्मक समर्थन प्रदान करता है।
2. गतिशीलता:
अंतिम गाड़ी गैन्ट्री को रेल प्रणाली के साथ चलने में सक्षम बनाती है, जिससे लंबी दूरी पर क्षैतिज यात्रा की सुविधा मिलती है। यह गतिशीलता शिपिंग यार्ड, गोदामों, या विनिर्माण संयंत्रों जैसे वातावरण में महत्वपूर्ण है जहां भार को बड़े क्षेत्रों में ले जाने की आवश्यकता होती है।
3. स्थिरता:
अंतिम गाड़ी गैन्ट्री क्रेन को स्थिरता प्रदान करती है, यह सुनिश्चित करती है कि यह ऑपरेशन के दौरान संतुलित रहे, खासकर भारी या असंतुलित भार उठाते समय।
पहिए या रेल-माउंटेड सिस्टम उपयोग के दौरान क्रेन को पलटने या संरेखण से बाहर जाने से रोकते हैं।
4. लोड हैंडलिंग:
अंतिम गाड़ी मुख्य गर्डर और उठाने वाली प्रणाली का समर्थन करके भार के प्रभावी वितरण में योगदान देती है, जिससे क्रेन को विभिन्न औद्योगिक अनुप्रयोगों में कुशल भार प्रबंधन करने की अनुमति मिलती है।
![]() |
![]() |
4.क्रेन यात्रा तंत्र
यात्रा तंत्र कैसे काम करता है:
1)आंदोलन को सशक्त बनाना:
ऑपरेटर क्रेन की नियंत्रण प्रणाली के माध्यम से ड्राइव मोटर को चालू करके यात्रा तंत्र को सक्रिय करता है।
मोटर गियरबॉक्स को शक्ति प्रदान करती है, जो अंतिम गाड़ियों के पहियों तक गति पहुंचाती है। ये पहिये रेल प्रणाली के साथ-साथ चलते हैं, गैन्ट्री क्रेन को क्षैतिज रूप से घुमाते हैं।
ऑपरेटर गति की गति और दिशा को नियंत्रित कर सकता है, कई क्रेनें सटीक गति के लिए परिवर्तनीय-गति नियंत्रण की पेशकश करती हैं।
2)क्षैतिज गति:
जैसे ही पहिए पटरियों के साथ चलते हैं, संपूर्ण गैन्ट्री क्रेन (मुख्य गर्डर और लिफ्टिंग सिस्टम सहित) रेल के एक छोर से दूसरे छोर तक यात्रा करती है।
क्रेन लंबी दूरी तय कर सकती है, और एक निश्चित क्षेत्र के भीतर भार परिवहन के लिए यह क्षैतिज यात्रा आवश्यक है।
3) ब्रेक लगाना और रोकना:
जब क्रेन वांछित स्थिति में पहुंच जाती है या ऑपरेटर को रुकने की आवश्यकता होती है, तो ब्रेकिंग सिस्टम सक्रिय हो जाता है।
क्रेन के कॉन्फ़िगरेशन के आधार पर, ब्रेकिंग स्वचालित रूप से तब हो सकती है जब ऑपरेटर नियंत्रण जारी करता है या जब एक सीमा स्विच पता लगाता है कि क्रेन अपने निर्दिष्ट स्टॉपिंग बिंदु पर पहुंच गई है।
4) मार्गदर्शन और संरेखण:
रेल द्वारा निर्देशित पहिए यह सुनिश्चित करते हैं कि गैन्ट्री क्रेन संरेखित रहे और एक सीधी रेखा में यात्रा करे। रेल प्रणाली या पहिया प्रणाली में गलत संरेखण से घिसाव और क्षति हो सकती है, इसलिए उचित संरेखण सुनिश्चित करने के लिए नियमित रखरखाव और जांच की आवश्यकता होती है।
5.ट्रॉली यात्रा तंत्र
मोबाइल गर्डर रेल गैन्ट्री क्रेन में ट्रॉली यात्रा तंत्र एक महत्वपूर्ण प्रणाली है जो ट्रॉली (क्रेन का वह भाग जो लहरा और उठाने की व्यवस्था को ले जाता है) को मुख्य गर्डर (क्रेन की क्षैतिज बीम) के साथ क्षैतिज रूप से चलने की अनुमति देता है। क्रेन के कार्य क्षेत्र के विभिन्न क्षेत्रों पर लहरा और भार की स्थिति के लिए यह गति महत्वपूर्ण है। ट्रॉली यात्रा तंत्र यह सुनिश्चित करता है कि गति को सुचारू और नियंत्रित रखते हुए भार को वांछित स्थान पर सटीक रूप से रखा जा सके।
ट्रॉली एक मोबाइल प्लेटफ़ॉर्म है जो गर्डर के साथ चलती है, लहरा और उठाने की व्यवस्था का समर्थन करती है। इसमें आम तौर पर होइस्ट मोटर, रस्सी या चेन प्रणाली और भार को ऊर्ध्वाधर उठाने के लिए जिम्मेदार अन्य घटक शामिल होते हैं। ट्रॉली को बिना किसी गलत संरेखण के गर्डर बीम के साथ आसानी से यात्रा करनी चाहिए, क्योंकि यह लोड हैंडलिंग में सुरक्षा और दक्षता दोनों को प्रभावित करता है।
6.क्रेन का पहिया
1) क्रेन व्हील मोबाइल गर्डर रेल गैन्ट्री क्रेन का एक महत्वपूर्ण घटक है, क्योंकि यह क्रेन को अपने ट्रैक या रेल सिस्टम के साथ चलने की अनुमति देता है। ये पहिये अंतिम गाड़ियों या ट्रॉलियों पर लगे होते हैं और उठाए जाने वाले भार सहित पूरे क्रेन का भार सहन करते हैं, जिससे रेल ट्रैक पर सुचारू और स्थिर गति सुनिश्चित होती है। गैन्ट्री क्रेन की सुरक्षा, दक्षता और दीर्घायु के लिए क्रेन पहियों का उचित डिजाइन, सामग्री चयन और रखरखाव आवश्यक है।
2) क्रेन के पहिये क्रेन के पूरे वजन को वहन करने के लिए जिम्मेदार होते हैं, जिसमें मुख्य गर्डर, होइस्ट, अंतिम कैरिज और उठाया जाने वाला भार शामिल है। इसके लिए मजबूत, टिकाऊ पहियों की आवश्यकता होती है जो पर्याप्त वजन और तनाव का सामना करने में सक्षम हों। यात्रा तंत्र (इलेक्ट्रिक मोटर और ड्राइव सिस्टम द्वारा संचालित) द्वारा संचालित पहिये, क्रेन को पटरियों के साथ क्षैतिज रूप से चलने की अनुमति देते हैं। वे क्रेन को परिचालन क्षेत्र में बड़ी दूरी तय करने में सक्षम बनाते हैं।
3) सुचारू संचालन: अच्छी तरह से डिज़ाइन किए गए और बनाए गए पहिये यह सुनिश्चित करते हैं कि क्रेन रेल प्रणाली के साथ सुचारू रूप से और कुशलता से चलती है।
जीवनकाल में वृद्धि: उचित पहिया डिजाइन और रखरखाव दोनों पहियों और क्रेन की सेवा जीवन को बढ़ाता है।
उन्नत सुरक्षा: पटरी से उतरने की घटनाओं को रोकना और दुर्घटनाओं के जोखिम को कम करना महत्वपूर्ण है। सुव्यवस्थित पहिए समग्र क्रेन सुरक्षा में योगदान करते हैं।

7.क्रेन हुक
हुक डिज़ाइन:
1) सिंगल हुक: मोबाइल गर्डर रेल गैन्ट्री क्रेन में उपयोग किया जाने वाला सबसे आम प्रकार सिंगल हुक डिज़ाइन है। यह सरल, मजबूत डिज़ाइन छोटे भागों से लेकर बड़े औद्योगिक घटकों तक विभिन्न प्रकार के भार उठाने की अनुमति देता है।
2) डबल हुक (यदि लागू हो): कुछ मामलों में, उठाने की क्षमता बढ़ाने या भारी भार को स्थिर करने के लिए डबल हुक सेटअप का उपयोग किया जाता है। यह उठाने के दौरान बड़े या असंतुलित भार को संतुलित करने में मदद कर सकता है।
3)आकार: हुक आम तौर पर घुमावदार या सी-आकार का होता है, जिसका गला गोल होता है और शीर्ष पर खुलता है, जो लिफ्टिंग स्लिंग्स, चेन या अन्य लोड-हैंडलिंग उपकरणों को जोड़ने के लिए एक सुरक्षित स्थान प्रदान करता है।
4) गले का खुलना: स्लिंग्स या जंजीरों को सुरक्षित रूप से जोड़ने के लिए हुक का गला खुलना महत्वपूर्ण है। मजबूती बनाए रखते हुए और घिसाव से बचते हुए विभिन्न उठाने वाले उपकरणों में फिट होने के लिए इसका आकार उचित होना चाहिए।

मोटर
1) दक्षता और प्रदर्शन: उच्च-गुणवत्ता, अच्छी तरह से बनाए रखी गई मोटरें यह सुनिश्चित करती हैं कि क्रेन अपने कर्तव्यों को कुशलतापूर्वक निभाए, भारी भार उठाए और न्यूनतम ऊर्जा खपत के साथ रेल के साथ आगे बढ़े।
2) सुरक्षा: ओवरलोड सुरक्षा जैसी सुरक्षा सुविधाओं के साथ डिज़ाइन की गई मोटरें क्रेन संचालन के दौरान दुर्घटनाओं के जोखिम को कम करती हैं।
3)स्थायित्व: उचित रूप से चयनित और रखरखाव की गई मोटरें चुनौतीपूर्ण परिचालन स्थितियों में भी वर्षों तक विश्वसनीय सेवा प्रदान कर सकती हैं।
4) लागत-प्रभावी संचालन: ऊर्जा-कुशल मोटर और नियंत्रण प्रणालियाँ, जैसे वीएफडी, बिजली की लागत को कम करती हैं और मोटर के जीवन को बढ़ाती हैं, जिससे वे लंबे समय में अधिक लागत प्रभावी बन जाते हैं।

.
ध्वनि और प्रकाश अलार्म प्रणाली और सीमा स्विच
ध्वनि और प्रकाश अलार्म प्रणाली:
1) सुरक्षा चेतावनी: ध्वनि और प्रकाश अलार्म प्रणाली का प्राथमिक उद्देश्य क्रेन ऑपरेटर और क्षेत्र में काम करने वाले लोगों दोनों को संभावित खतरों के प्रति सचेत करना है, जैसे कि जब क्रेन अपनी अधिकतम क्षमता के करीब काम कर रही हो या यदि यह किसी असुरक्षित क्षेत्र में प्रवेश कर रही हो .
2) लोड हैंडलिंग के लिए चेतावनी: सिस्टम यह सुनिश्चित करने में मदद करता है कि जब भारी भार उठाया जा रहा हो या जब क्रेन चल रही हो तो श्रमिकों को जानकारी हो, जिससे दुर्घटनाओं का खतरा कम हो जाता है।
3)आंदोलन या कार्यों का संकेत देना: ध्वनि और प्रकाश अलार्म का उपयोग विभिन्न क्रेन आंदोलनों जैसे पटरियों के साथ यात्रा करना, ट्रॉली को उठाना या हिलाना, आसपास के कर्मियों को स्पष्ट चेतावनी प्रदान करने के लिए भी किया जाता है।
सीमा स्विच:
1) ओवरट्रैवल की रोकथाम: सीमा स्विच ओवरट्रैवल को रोकते हैं, जो क्रेन संरचना को नुकसान पहुंचा सकता है या क्रेन को उसकी परिचालन सीमाओं को पार करने से रोककर खतरनाक स्थिति पैदा कर सकता है।
2) क्रेन घटकों की सुरक्षा: वे क्रेन के महत्वपूर्ण घटकों (जैसे मोटर, केबल, या ट्रैक) को तनाव, टूट-फूट और अत्यधिक गति के कारण होने वाली संभावित क्षति से बचाने में मदद करते हैं।
3) सुरक्षा संरक्षण: सीमा स्विच सुरक्षा के लिए महत्वपूर्ण हैं, क्योंकि वे क्रेन को खतरनाक गतिविधियों को करने से रोकते हैं, यह सुनिश्चित करते हुए कि क्रेन हर समय एक सुरक्षित सीमा के भीतर संचालित होती है।

10.सुरक्षा उपकरण
1. अधिभार संरक्षण उपकरण:
क्रेन को उसकी निर्धारित क्षमता से अधिक भार उठाने से रोकता है, जिससे संरचनात्मक क्षति या क्रेन विफलता का जोखिम कम हो जाता है।
डिवाइस उठाए गए भार के वजन की निगरानी करता है और ओवरलोड का पता चलने पर क्रेन की उत्थापन क्रिया को स्वचालित रूप से रोक देता है।
2. सीमा स्विच: क्रेन को उसकी सुरक्षित परिचालन सीमा से परे यात्रा करने या फहराने से रोकता है। सीमा स्विच का उपयोग विभिन्न क्रेन आंदोलनों (उदाहरण के लिए, उत्थापन ऊंचाई, क्षैतिज यात्रा, ट्रॉली आंदोलन) के लिए अधिकतम और न्यूनतम स्थिति को परिभाषित करने के लिए किया जाता है।
3. आपातकालीन स्टॉप बटन (ई-स्टॉप): आपातकालीन या खतरनाक स्थिति की स्थिति में ऑपरेटर को क्रेन को तुरंत रोकने की अनुमति देता है। आपातकालीन स्टॉप बटन आमतौर पर ऑपरेटर के केबिन में या क्रेन के नियंत्रण कक्ष पर स्थित होता है। इसे दबाने से क्रेन के संचालन तंत्र की बिजली बंद हो जाती है, जिससे क्रेन की गतिविधियां तुरंत रुक जाती हैं।
4. टक्कर-रोधी प्रणाली: क्रेन को क्षेत्र में अन्य क्रेनों, संरचनाओं या उपकरणों से टकराने से रोकती है। निकटता सेंसर या रडार-आधारित सिस्टम: ये प्रणालियाँ आस-पास की बाधाओं (अन्य क्रेनों, इमारतों या उपकरणों सहित) का पता लगाती हैं और चेतावनी देती हैं आसन्न टक्कर का क्रेन ऑपरेटर। यदि आवश्यक हो, तो टकराव से बचने के लिए सिस्टम स्वचालित रूप से क्रेन को रोक सकता है या उसकी गति को धीमा कर सकता है।
11. नियंत्रण मोड
1)मैन्युअल नियंत्रण मोड:
मैन्युअल नियंत्रण मोड में, क्रेन ऑपरेटर भौतिक नियंत्रणों (जैसे, जॉयस्टिक, बटन, या स्विच) के एक सेट के माध्यम से सीधे क्रेन की गतिविधियों को नियंत्रित करता है। इस मोड के लिए ऑपरेटर से निरंतर ध्यान और इनपुट की आवश्यकता होती है, क्योंकि वे क्रेन की हर गतिविधि के लिए जिम्मेदार होते हैं।
2)रिमोट कंट्रोल मोड:
रिमोट कंट्रोल मोड में, क्रेन को एक वायरलेस कंट्रोल यूनिट के माध्यम से संचालित किया जाता है, जो एक हैंडहेल्ड ट्रांसमीटर या पेंडेंट नियंत्रक हो सकता है। ऑपरेटर क्रेन केबिन तक ही सीमित नहीं है और सुरक्षित दूरी से क्रेन को नियंत्रित कर सकता है।
3)केबिन नियंत्रण मोड:
केबिन नियंत्रण मोड में, क्रेन को एक नियंत्रण केबिन से संचालित किया जाता है जो क्रेन पर लगा होता है। क्रेन की गतिविधियों को नियंत्रित करने के लिए ऑपरेटर जॉयस्टिक या बटनों के एक सेट का उपयोग करके केबिन के अंदर रहता है।
4)स्वचालित नियंत्रण मोड (स्वचालित या अर्ध-स्वचालित):
स्वचालित या अर्ध-स्वचालित नियंत्रण मोड में, क्रेन का संचालन आंशिक रूप से या पूरी तरह से एक स्वचालित प्रणाली द्वारा नियंत्रित होता है। इस मोड का उपयोग अक्सर दोहराए जाने वाले कार्यों के लिए या उन स्थितियों में किया जाता है जहां सटीकता और गति महत्वपूर्ण होती है।

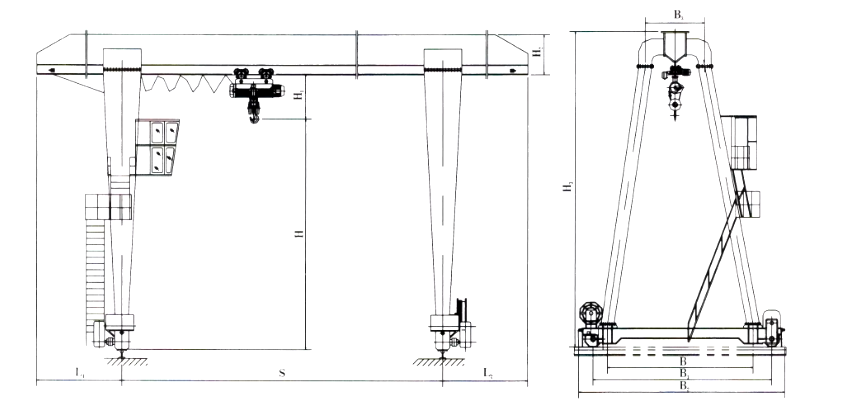
12.स्केच

मुख्य तकनीकी

लाभ
1. लचीलापन और गतिशीलता:
पटरियों के साथ चलने योग्य: मोबाइल गर्डर रेल गैन्ट्री क्रेन रेल प्रणालियों के साथ यात्रा कर सकते हैं, जिससे बड़े क्षेत्रों में भार ले जाने में लचीलापन मिलता है। किसी सुविधा या यार्ड के भीतर एक स्थान से दूसरे स्थान पर जाने की उनकी क्षमता परिचालन दक्षता और बहुमुखी प्रतिभा को बढ़ाती है।
2. लागत दक्षता:
कम बुनियादी ढांचा निवेश: मोबाइल गैन्ट्री क्रेन बड़ी नींव या जटिल ओवरहेड क्रेन जैसे स्थायी बुनियादी ढांचे की आवश्यकता को खत्म कर सकते हैं। इससे प्रारंभिक स्थापना लागत कम हो जाती है, जिससे वे कुछ अनुप्रयोगों में अधिक किफायती हो जाते हैं।
3. भारी भार उठाने की क्षमता:
हाई लोड हैंडलिंग: मोबाइल गर्डर रेल गैन्ट्री क्रेन को भारी और बड़े भार को संभालने के लिए डिज़ाइन किया गया है, जो उन्हें जहाज निर्माण, भारी मशीनरी विनिर्माण और बंदरगाहों पर कंटेनर हैंडलिंग जैसे उद्योगों के लिए आदर्श बनाता है। वे मजबूत उठाने की क्षमता प्रदान करते हैं, जिससे महत्वपूर्ण सामग्रियों की सुरक्षित हैंडलिंग सुनिश्चित होती है।
4. बड़े कार्य क्षेत्र का कवरेज:
व्यापक कवरेज: मोबाइल गैन्ट्री क्रेन विस्तृत क्षेत्रों को कवर कर सकते हैं, विशेष रूप से बड़े आउटडोर या इनडोर औद्योगिक सुविधाओं में। पटरियों पर चलते हुए, वे विभिन्न स्थानों तक पहुंच सकते हैं, जिससे उत्पादकता में सुधार और हैंडलिंग समय को कम करने में मदद मिलती है।
5. बेहतर सुरक्षा:
ऑपरेटर सुरक्षा: ये क्रेन अक्सर उन्नत सुरक्षा सुविधाओं जैसे ओवरलोड सुरक्षा, सीमा स्विच, ध्वनि और प्रकाश अलार्म और आपातकालीन स्टॉप फ़ंक्शन के साथ आती हैं। ऑपरेटर क्रेन को सुरक्षित दूरी से भी नियंत्रित कर सकता है, खासकर अगर रिमोट कंट्रोल या केबिन कंट्रोल मोड का उपयोग कर रहा हो।
6. न्यूनतम ज़मीन की तैयारी:
गहरी नींव की कोई आवश्यकता नहीं: कुछ पारंपरिक क्रेनों के विपरीत, जिन्हें महत्वपूर्ण ग्राउंडवर्क या विशेष नींव की आवश्यकता होती है, मोबाइल गर्डर रेल गैन्ट्री क्रेन को अक्सर रेल के लिए न्यूनतम तैयारी की आवश्यकता होती है। इससे स्थापना का समय और लागत दोनों कम हो सकती है।
7. उत्पादकता में वृद्धि:
कुशल लोड हैंडलिंग: इन क्रेनों को वर्कफ़्लो को अनुकूलित करने, हैंडलिंग समय को कम करने और साइट पर सामग्री आंदोलन दक्षता बढ़ाने के लिए डिज़ाइन किया गया है। निर्दिष्ट पथों पर बड़े भार को तेजी से ले जाने की उनकी क्षमता डाउनटाइम को कम करती है, जिससे उत्पादकता का स्तर ऊंचा होता है।
आवेदन पत्र:
1. बंदरगाह और कंटेनर हैंडलिंग
कंटेनरों को लोड करना और उतारना: बंदरगाहों में, जहाजों से ट्रकों तक या इसके विपरीत कंटेनरों को लोड करने और उतारने के लिए मोबाइल गैन्ट्री क्रेन का व्यापक रूप से उपयोग किया जाता है। विशाल भंडारण यार्डों में रेल के एक सेट के साथ चलने की उनकी क्षमता उन्हें बड़ी मात्रा में कार्गो को कुशलतापूर्वक संभालने की अनुमति देती है।
2. निर्माण स्थल
भारी सामान उठाना और सामग्री संभालना: मोबाइल गैन्ट्री क्रेन निर्माण स्थलों पर स्टील बीम, कंक्रीट ब्लॉक या बड़े निर्माण घटकों जैसी भारी सामग्री उठाने के लिए आदर्श हैं। क्रेन की गतिशीलता इसे आवश्यकतानुसार साइट के विभिन्न हिस्सों में ले जाने की अनुमति देती है।
साइट भर में सामग्रियों का परिवहन: इन क्रेनों का उपयोग सामग्रियों को भंडारण से कार्य क्षेत्रों तक ले जाने के लिए किया जा सकता है, जिससे फोर्कलिफ्ट जैसे अतिरिक्त उपकरणों की आवश्यकता कम हो जाती है और निर्माण प्रक्रियाओं की गति बढ़ जाती है।
3. जहाज निर्माण और शिपयार्ड
नाव और जहाज निर्माण: शिपयार्ड में, मोबाइल गर्डर रेल गैन्ट्री क्रेन का उपयोग स्टील प्लेट, इंजन और अन्य बड़े घटकों जैसे भारी जहाज निर्माण सामग्री के परिवहन और स्थिति के लिए किया जाता है। पूरे यार्ड में उनकी गतिशीलता असेंबली स्टेशनों के बीच भागों के कुशल संचालन की अनुमति देती है।
4. स्टील मिलें और भारी विनिर्माण
स्टील और धातुओं को संभालना: स्टील मिलों और विनिर्माण संयंत्रों में, इन क्रेनों का उपयोग आमतौर पर उत्पादन या प्रसंस्करण के विभिन्न चरणों के बीच स्टील, धातु शीट और अन्य बड़े औद्योगिक घटकों के भारी रोल को स्थानांतरित करने के लिए किया जाता है।
5. रेलमार्ग और रेल यार्ड संचालन
रेलकार और लोकोमोटिव उठाना: मोबाइल गैन्ट्री क्रेन का उपयोग रेल यार्ड में मरम्मत या परिवहन के लिए रेलकार या लोकोमोटिव को उठाने, बनाए रखने और स्थानांतरित करने के लिए किया जाता है। उनकी गतिशीलता और उठाने की क्षमता उन्हें भारी रेलवे उपकरणों को ले जाने के लिए एक उत्कृष्ट उपकरण बनाती है।
क्रेनउत्पादन प्रक्रिया
1. डिज़ाइन और इंजीनियरिंग चरण
प्रक्रिया ग्राहक की विशिष्टताओं की स्पष्ट समझ के साथ शुरू होती है, जिसमें उठाने की क्षमता, अवधि, रेल प्रणाली का प्रकार, पर्यावरण (इनडोर/आउटडोर), और विशिष्ट परिचालन आवश्यकताएं शामिल हैं। इन आवश्यकताओं के आधार पर, इंजीनियर भार क्षमता, संरचनात्मक अखंडता और सुरक्षा सुविधाओं के लिए गणना करते हैं। वे क्रेन की स्थिरता, आवश्यक मोटर शक्ति, रेल संरचना और उठाने की व्यवस्था जैसे कारकों को भी निर्धारित करते हैं।
2. सामग्री की खरीद
स्टील प्लेट, बीम, तार और केबल जैसे उच्च गुणवत्ता वाले कच्चे माल को डिजाइन चरण में उल्लिखित विशिष्टताओं के अनुसार खरीदा जाता है। आपूर्तिकर्ताओं को आवश्यक गुणवत्ता मानकों, वितरण कार्यक्रम और लागत-प्रभावशीलता के आधार पर सावधानीपूर्वक चुना जाता है। विशिष्टताओं का अनुपालन सुनिश्चित करने के लिए डिलीवरी पर सामग्रियों का निरीक्षण किया जाता है।
3. संरचनात्मक घटकों का निर्माण और संयोजन
स्टील प्लेट और बीम को लेजर कटर, सीएनसी मशीन या ऑक्सी-ईंधन कटिंग जैसे उन्नत कटिंग टूल का उपयोग करके आवश्यक आयामों में काटा जाता है। काटने के बाद, क्रेन की मुख्य संरचना बनाने के लिए घटकों को एक साथ वेल्ड किया जाता है। यह सुनिश्चित करने के लिए कि जोड़ मजबूत और टिकाऊ हैं, उच्च शक्ति वाली वेल्डिंग प्रक्रियाओं का उपयोग किया जाता है। अल्ट्रासोनिक या एक्स-रे निरीक्षण जैसे गैर-विनाशकारी परीक्षण तरीकों का उपयोग करके संरचनात्मक अखंडता के लिए वेल्डेड जोड़ों का सावधानीपूर्वक निरीक्षण किया जाता है।
4. ट्रॉली और लिफ्टिंग मैकेनिज्म असेंबली
ट्रॉली, जो लहरा और उठाने की व्यवस्था करती है, को स्टील बीम का उपयोग करके इकट्ठा किया जाता है। इसे सुचारू यात्रा के लिए क्रेन की रेल प्रणाली में सटीक रूप से फिट होने के लिए डिज़ाइन किया गया है। ट्रॉली पर चरखी, मोटर, रस्सियाँ और हुक सहित उत्थापन तंत्र स्थापित किया गया है। इन घटकों को भारी-भरकम सामान उठाने के लिए डिज़ाइन किया गया है और कुशल और सुचारू संचालन सुनिश्चित करने के लिए सावधानीपूर्वक कैलिब्रेट किया गया है।
5. क्रेन घटकों की असेंबली
मुख्य गर्डर को अंतिम कैरिज पर लगाया जाता है, और पूरी संरचना को इकट्ठा किया जाता है। इस प्रक्रिया के दौरान संरेखण और संतुलन सुनिश्चित करने के लिए परिशुद्धता महत्वपूर्ण है। ट्रॉली असेंबली को गैन्ट्री संरचना की पटरियों पर रखा गया है। इसमें क्रेन रेल के साथ सुचारू और कुशल आवाजाही सुनिश्चित करने के लिए सटीक संरेखण शामिल है। उठाने की व्यवस्था का परीक्षण भार जोड़कर और विभिन्न परिस्थितियों में सुचारू संचालन, स्थिरता और प्रदर्शन की जांच करके किया जाता है।
6. परीक्षण और गुणवत्ता नियंत्रण
क्रेन को पहले स्थैतिक भार परीक्षणों के अधीन किया जाता है, जहां क्रेन की संरचनात्मक अखंडता और उठाने की क्षमता को सत्यापित करने के लिए भार लागू किया जाता है। परिचालन प्रदर्शन का आकलन करने के लिए क्रेन को ट्रॉली आंदोलन, उत्थापन और पूर्ण गैन्ट्री यात्रा सहित गतिशील परीक्षण से गुजरना पड़ता है। यह सुनिश्चित करता है कि पहिए, मोटर और इलेक्ट्रिकल सिस्टम सहित सभी घटक इच्छानुसार काम करें।
7.पेंटिंग और कोटिंग
सतह की तैयारी: जंग को रोकने और स्थायित्व सुनिश्चित करने के लिए क्रेन घटकों को साफ किया जाता है और पेंटिंग के लिए तैयार किया जाता है।
पेंटिंग: क्रेन की संरचना पर सुरक्षात्मक कोटिंग्स लगाई जाती हैं, आमतौर पर मौसम और टूट-फूट से बचाने के लिए संक्षारण प्रतिरोधी पेंट के साथ। ब्रांडिंग उद्देश्यों और दृश्यता के लिए क्रेन को अक्सर कंपनी की रंग योजना में चित्रित किया जाता है।
सुखाना: अगले चरण पर जाने से पहले पेंट की गई क्रेन को पूरी तरह सूखने दिया जाता है।

कार्यशाला दृश्य:
कंपनी ने एक बुद्धिमान उपकरण प्रबंधन प्लेटफ़ॉर्म स्थापित किया है, और हैंडलिंग और वेल्डिंग रोबोट के 310 सेट (सेट) स्थापित किए हैं। योजना के पूरा होने के बाद, 500 से अधिक सेट (सेट) होंगे, और उपकरण नेटवर्किंग दर 95% तक पहुंच जाएगी। 32 वेल्डिंग लाइनों को उपयोग में लाया गया है, 50 को स्थापित करने की योजना है, और संपूर्ण उत्पाद लाइन की स्वचालन दर 85% तक पहुंच गई है।





लोकप्रिय टैग: मोबाइल गर्डर रेल गैन्ट्री, चीन मोबाइल गर्डर रेल गैन्ट्री निर्माता, आपूर्तिकर्ता, कारखाने
की एक जोड़ी
एक फ्रेम लिफ्टिंग गैन्ट्री क्रेनशायद तुम्हे यह भी अच्छा लगे
जांच भेजें


























